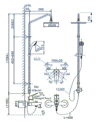
Sen cây nóng lạnh INAX BFV-1115S-3C
ĐƠN GIÁ MANG TÍNH CHẤT THAM KHẢO. LIÊN HỆ ĐỂ NHẬN ĐƯỢC BÁO GIÁ TỐT NHẤT (Call/Zalo)
GIAO HÀNG TẬN NƠI
Cập nhật
| THƯƠNG HIỆU |
 |
| MÃ SẢN PHẨM |
BFV-1115S-3C |
| CHẤT LIỆU |
Đồng mạ CROM-NIKEN |
| TÍNH NĂNG NỔI BẬT |
Sen được thiết kế với đĩa Cartridge bền bỉ và giúp tiết kiệm nước
Tay sen massage 5 chế độ |